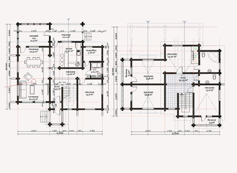
S общ. = 290 м²
- Фундамент - монолитный ж/б
- Стены - клеёный профилированный брус 180х220 мм
- Перекрытия - по деревянным балкам
- Кровля - мансардная
- Покрытие - черепица
- Наружная отделка - тонировка
- Цоколь - штукатурка, окраска или
натуральный камень




