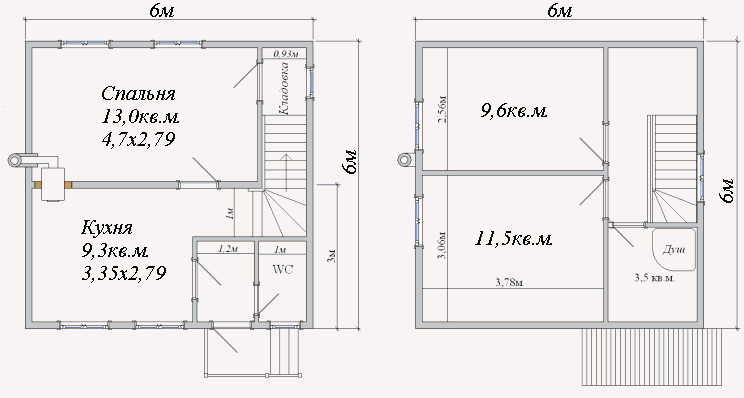
S общ. = 60 м²
- Фундамент - монолитный ж/б
- Стены - Тёплая панель (d=180 мм)
- Перекрытия - по деревянным балкам
- Кровля - мансардная
- Покрытие - металлочерепица
- Наружная отделка - покраска
- Цоколь - штукатурка, окраска или
натуральный камень
|
|||||||
![]() | |||||||
|
S общ. = 60 м²
|
|
